Расположение
Москва, Сигнальный пр-д, вл. 16
- Владыкино
10 мин

Скидки и акции от застройщика
Узнайте про персональные условия и дополнительные скидки при покупке квартиры

Описание
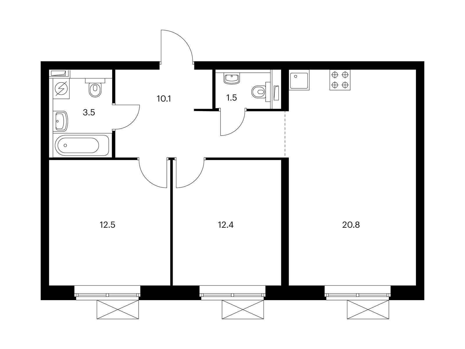
Продаётся 2-комн.квартира площадью 50.80 кв.м на 3 этаже 33 этажного дома (Корпус 2.2, секция 4) проекта ПИК Сигнальный 16. Светлый просторный подъезд на уровне земли, функциональная планировка, большие окна, с отделкой.
«Сигнальный 16» возводится в районе Отрадное, рядом с парком Ботанический сад, в 10 минутах ходьбы от станции метро и МЦК «Владыкино». На автомобиле до Алтуфьевского шоссе ехать 5 минут, до ТТК — 20 минут.
MultiHub «Сигнал» - новое уникальное пространство для спорта и отдыха на территории проекта Сигнальный 16. В основе всего здесь заложена концепция волн, их плавности и гибкости. Авторы переосмыслили их в виде изогнутых линий, которые встречаются по всей территории: на памп-треке, на игровой площадке.
В MultiHub «Сигнал» будет всё для комфортного отдыха после насыщенного рабочего дня. Помимо тренажёров и брусьев с турниками, здесь расположатся качели-гнёзда, качели-лавочки и лежаки. Также продумана извилистая прогулочная зона, идущая вдоль детской игровой площадки.
Детям любых возрастов понравится исследовать уникальное игровое пространство. Ребятам предстоит пройти полосу препятствий: проползти по тоннелю в полусфере, затем взобраться на стальной купол, а после этого — вскарабкаться по канатной сетке длиной в 15 метров, ведущей прямиком к зиплайну.
А главной радостью для взрослых и детей станет волнообразный памп-трек с виражами для катания на самокатах, роликах и велосипедах. Для самых маленьких или новичков в спорте предусмотрен бесшумный асфальтовый боул, тренироваться в котором разрешено детям от 5 лет.
В проект входят жилые дома, подземные паркинги, школа и детский сад. Все квартиры в домах будут с отделкой — после заселения останется только расставить мебель. На первых этажах откроются магазины и кафе, а прямо под окнами появятся современные детские площадки и места для отдыха.
Жилой квартал находится вдали от шума крупных магистралей. Вокруг много скверов и парков, есть школы и детские сады, поликлиники и магазины. Поблизости открыты фитнес-клубы и крупные торговые центры.
Недалеко от проекта расположен один из самых красивых парков Москвы — Главный ботанический сад имени Н.В. Цицина РАН, основанный в 1945 году. Это один из крупнейших ботанических садов в Европе. Территория парка является особо охраняемой территорией федерального значения и объектом культурного наследия.
Дойти до «Ботанического сада» жители «Сигнального 16» смогут по безопасной и удобной дороге рядом с кварталом за 15 минут. Широкие асфальтированные тротуары сделают путь приятным как для обычных пешеходов, так и для родителей с колясками, велосипедистов и маломобильных жителей. Цена действует при оплате наличными. подробности по телефону. Артикул - 852084
Параметры квартиры
- Площадь квартиры50.8
- Жилая площадь20.6
- Площадь кухни17.9
- Тип домаМонолит
- Высота потолков2.68
- Этаж3 из 33
- Количество этажей33
- ОтделкаС отделкой
- ЛифтДа
- СтудияНет
- Закрытая территорияНет
- Наличие мусоропроводаНет
- Элитная недвижимостьНет данных
- Наличие охраняемой парковкиДа
- Стадия строительства домаСтроится
- Площадь комнат10.7 / 9.9
О застройщике
Другие 2-комн. в этом ЖК
2-комнатная квартира, 50.8 кв.м
- Срок сдачи2 кв. 2025
- Общая площадь50.8 м2
- Этаж3




