Расположение
Москва, 2-ой Нагатинский пр-д, вл. 2
- Коломенская
18 мин

Скидки и акции от застройщика
Узнайте про персональные условия и дополнительные скидки при покупке квартиры

Описание
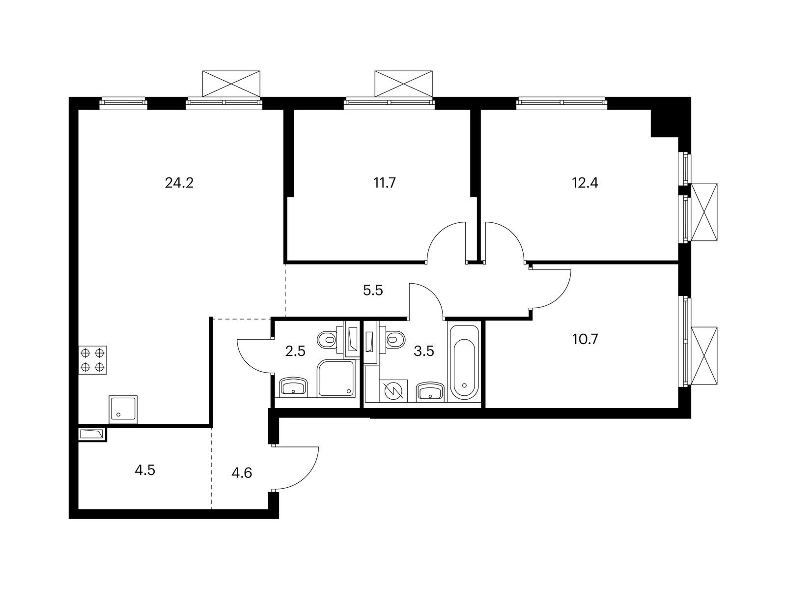
Продаётся 3-комн.квартира площадью 71.60 кв.м на 33 этаже 33 этажного дома (Корпус 6, секция 2) проекта ПИК Второй Нагатинский. Светлый просторный подъезд на уровне земли, функциональная планировка, большие окна, с отделкой.
Жилой квартал расположен в районе Нагатино-Садовники, в 15 минутах ходьбы от метро «Нагатинская» и в 18 минутах от «Коломенской».
Недалеко находятся парк «Садовники», музей-заповедник «Коломенское», Нагатинская набережная и спортивный комплекс «КАНТ», где зимой работают горнолыжные трассы, а летом — верёвочный парк.
В жилом квартале будет семнадцать домов высотой от 14 до 33 этажей, благоустроенная территория с дворами-парками, подземные паркинги, собственные детский сад и школа. Для тех, кто любит активный отдых, мы построим футбольные и баскетбольные площадки рядом с домами. Цена действует при оплате наличными. подробности по телефону. Артикул - 819562
Параметры квартиры
- Площадь квартиры71.6
- Жилая площадь32.4
- Площадь кухни26.2
- Тип домаМонолит
- Высота потолков2.6
- Этаж33 из 33
- Количество этажей33
- ОтделкаЧистовая
- ЛифтДа
- СтудияНет
- Закрытая территорияНет
- Наличие мусоропроводаНет
- Элитная недвижимостьНет данных
- Наличие охраняемой парковкиНет
- Стадия строительства домаСдан в эксплуатацию
- Площадь комнат13.5 / 9.9 / 9
О застройщике
Другие 3-комн. в этом ЖК
3-комнатная квартира, 71.6 кв.м
- Срок сдачи1 кв. 2025
- Общая площадь71.6 м2
- Этаж33




