Расположение
Москва, ул. Мостотреста, 3
- Улица Скобелевская
18 мин

Скидки и акции от застройщика
Узнайте про персональные условия и дополнительные скидки при покупке квартиры

Описание
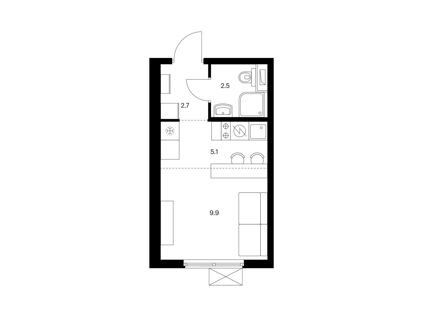
Продаётся квартира-студия площадью 20.20 кв.м на 13 этаже 17 этажного дома (Корпус 2.2, секция 2) проекта ПИК Юнино. Светлый просторный подъезд на уровне земли, функциональная планировка, большие окна, с отделкой.
Жилой квартал «Юнино» возводится в Новой Москве, в девяти километрах от МКАД по Варшавскому шоссе. В 10 минутах ходьбы находится станция МЦД-2 «Щербинка».
Проект состоит из трёх 17-этажных корпусов с просторными лобби с кондиционерами, а также дворами-парками с Wi-Fi. На первых этажах откроются магазины, кафе, салоны красоты и полезные сервисы для комфортной жизни.
Рядом находятся школы и детские сады, супермаркеты и ТЦ «Бутово Молл». Для прогулок отлично подойдут благоустроенный парк «Барыши», музей-усадьба «Остафьево» и Новокурьяновский лесопарк. Цена действует при оплате наличными. подробности по телефону. Артикул - 958170
Параметры квартиры
- Площадь квартиры20.2
- Жилая площадь9.9
- Площадь кухни5.1
- Тип домаМонолит
- Высота потолков2.62
- Этаж13 из 17
- Количество этажей17
- ОтделкаЧистовая
- ЛифтДа
- СтудияДа
- Закрытая территорияНет
- Наличие мусоропроводаДа
- Элитная недвижимостьНет данных
- Наличие охраняемой парковкиНет
- Стадия строительства домаСтроится
О застройщике
Другие студии в этом ЖК
20.2 кв.м
- Срок сдачи3 кв. 2026
- Общая площадь20.2 м2
- Этаж13




