Расположение
Одинцово, Жилой комплекс Одинцово-1, корп. 1.26.1
- Рассказовка
20 мин

Скидки и акции от застройщика
Узнайте про персональные условия и дополнительные скидки при покупке квартиры

Описание
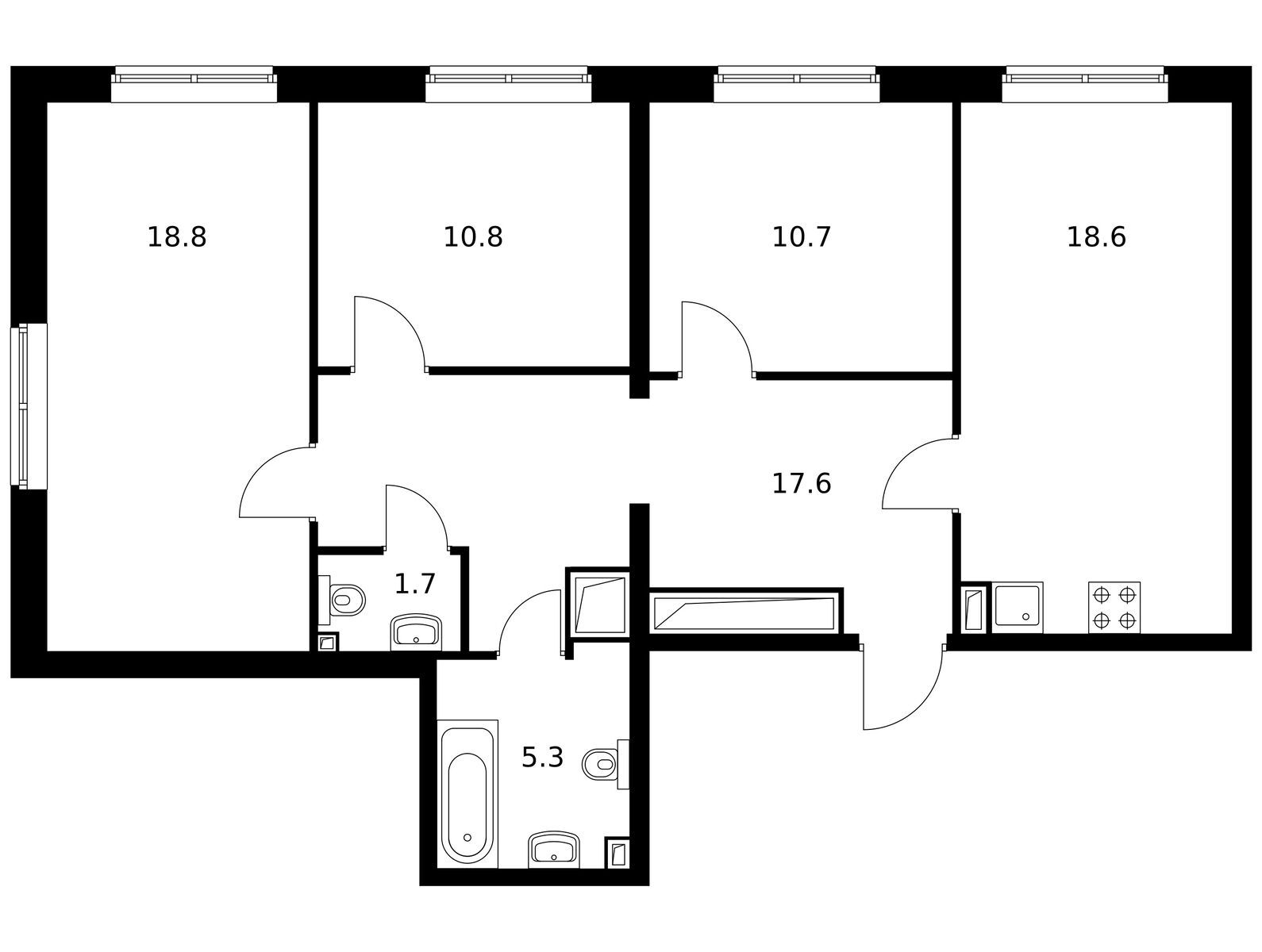
Продаётся 3-комн.квартира площадью 87.80 кв.м на 13 этаже 16 этажного дома (Корпус 1.26.1, секция 1) проекта ПИК Одинцово-1. Светлый просторный подъезд на уровне земли, функциональная планировка, большие окна, с отделкой. <br> <br> <br>«Одинцово-1» — проект ПИК, сочетающий преимущества городской жизни и экологически чистого природного окружения. Здесь есть вся необходимая инфраструктура. Уже работают две школы и четыре детских сада. А в будущем рядом с проектом появятся ещё четыре дошкольных учебных учреждения. <br> <br>На территории жилого квартала строятся многоуровневые паркинги и муниципальная поликлиника. На первых этажах домов работают магазины, кафе и другие полезные сервисы. <br> <br>Рядом с каждым домом — двор-парк с газоном и местами для отдыха, спорта и игр. Здесь мы высадим уже взрослые деревья и кустарники. Для любителей активного отдыха предусмотрены площадки для футбола и баскетбола. Они расположены не во дворе, а чуть дальше — так, чтобы шум от игр не мешал жителям домов. <br> <br>В «Одинцово-1» можно выбрать отделку будущей квартиры: готовую или предчистовую. С готовой можно заезжать и жить сразу после получения ключей. А если вам хочется сделать своё уникальное оформление, подойдёт предчистовая отделка: в этом варианте мы выполним самые сложные инженерные работы, а вам останется только декоративный ремонт. <br> <br>Рядом с кварталом две станции МЦД — «Одинцово» и «Внуково»: до любой из них можно дойти пешком или доехать на маршрутке за 7–10 минут. От них легко доехать до центра Москвы или пересесть в метро на Арбатско-Покровскую, Таганско-Краснопресненскую или Замоскворецкую линию метро. Цена действует при оплате наличными. подробности по телефону. Артикул - 864525
Параметры квартиры
- Площадь квартиры87.8
- Жилая площадь41.7
- Площадь кухни22.3
- Тип домаМонолит
- Высота потолков2.68
- Этаж13 из 16
- Количество этажей16
- ОтделкаПредчистовая
- ЛифтДа
- СтудияНет
- Закрытая территорияДа
- Наличие мусоропроводаНет
- Элитная недвижимостьНет данных
- Наличие охраняемой парковкиНет
- Стадия строительства домаСдан в эксплуатацию
- Площадь комнат14.7 / 14.2 / 12.8
О застройщике
Другие 3-комн. в этом ЖК
3-комнатная квартира, 87.8 кв.м
- Срок сдачи2 кв. 2025
- Общая площадь87.8 м2
- Этаж13




