Расположение
Санкт-Петербург, null

Скидки и акции от застройщика
Узнайте про персональные условия и дополнительные скидки при покупке квартиры

Описание
Остров первых - новый премиальный квартал в центре Петербурга, на Матисовом острове. Всего в нескольких минутах находятся легендарная Новая Голландия, величественный Мариинский театр и вся культурная палитра Петербурга. Архитектура, разработанная Евгением Подгорновым и его студией INTERCOLUMNIUM, отражает характер города. Фасады облицованы кирпичом терракотового и серого оттенков. Все материалы отвечают высокому качеству строительства.
Компания Fizika Development бережно восстановит исторический объект, воплощающий величие императорской России. Краснокирпичное производственное здание с водонапорной башней завода шотландского инженера Чарльза Берда станет лицом клубного квартала "Остров первых" и новой точкой притяжения для горожан.
Приватная территория, сочетающая камерную атмосферу и комфорт, была создана ведущими урбанистами города. Проектом предусмотрен одноуровневый подземный паркинг под жилыми корпусами и дворовым пространством, а также гостевые парковочные места по периметру квартала.
Особое внимание уделено безопасности: закрытые дворы, охраняемая территория, круглосуточное видеонаблюдение и контроль доступа 24/7. В премиальном квартале "Остров первых" представлены уникальные планировочные решения: от уютных студий до просторных трехкомнатных квартир с потолками до 5,1 метров.
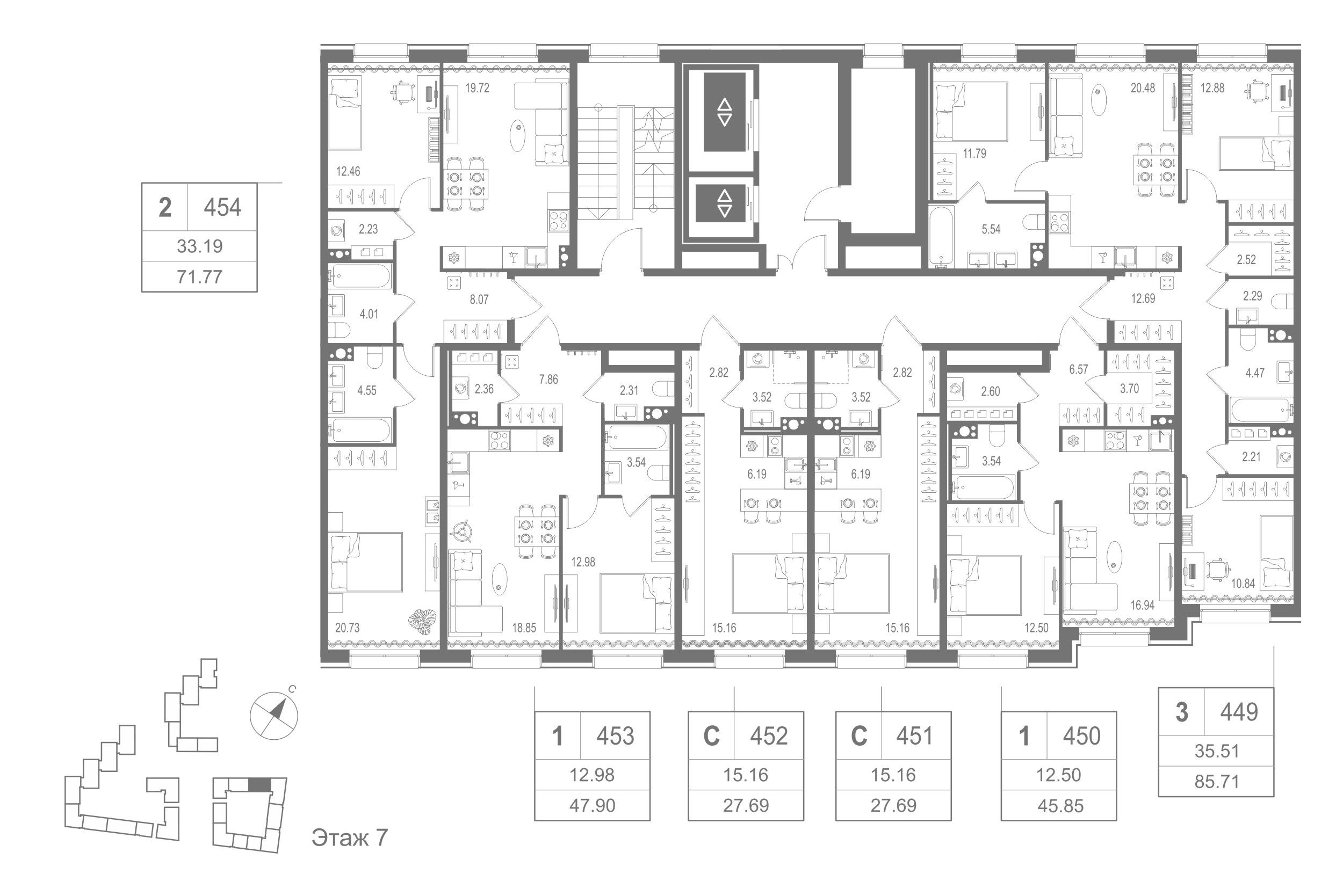
Параметры квартиры
- Площадь квартиры71.77
- Жилая площадь33.19
- Этаж7 из 10
- Количество этажей10
- ОтделкаЧерновая отделка
- ЛифтНет
- СтудияНет
- Закрытая территорияНет
- Наличие мусоропроводаНет
- Элитная недвижимостьНет данных
- Наличие охраняемой парковкиНет
- Стадия строительства домаСтроится
О застройщике
Другие 2-комн. в этом ЖК
2-комнатная квартира, 71.77 кв.м
- Срок сдачи1 кв. 2029
- Общая площадь71.77 м2
- Этаж7




