Расположение
Москва, Дмитровское шоссе, 83а

Скидки и акции от застройщика
Узнайте про персональные условия и дополнительные скидки при покупке квартиры

Параметры квартиры
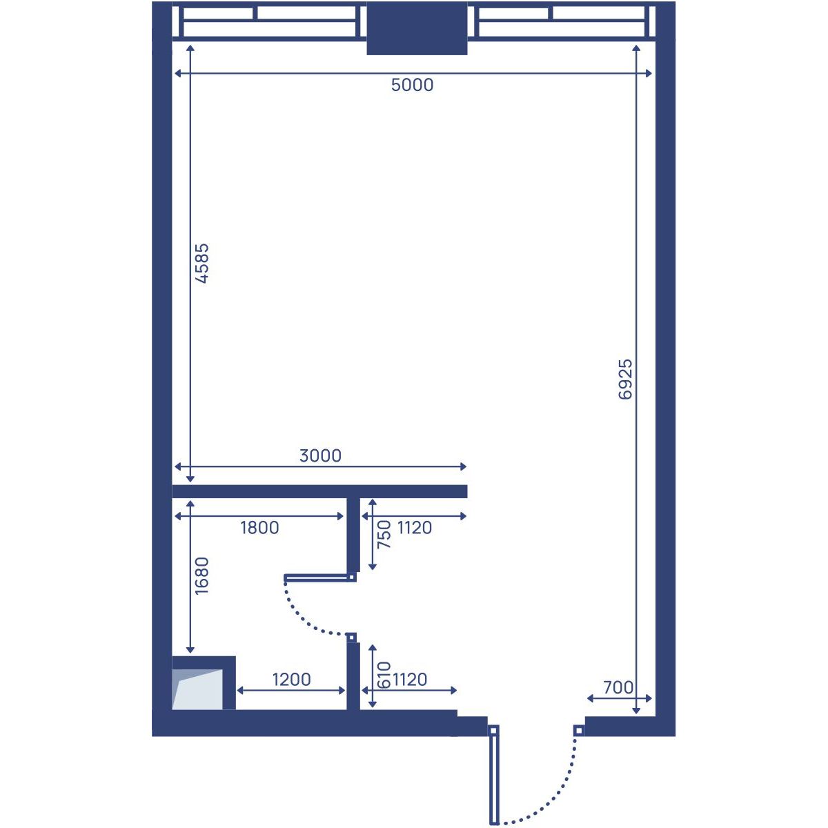
- Площадь квартиры33.7
- Жилая площадь17.4
- Тип домаМонолит
- Этаж48 из 51
- Количество этажей51
- ОтделкаЧерновая отделка
- ЛифтНет
- СтудияДа
- Закрытая территорияНет
- Наличие мусоропроводаНет
- Элитная недвижимостьНет данных
- Наличие охраняемой парковкиНет
- Стадия строительства домаСтроится
О застройщике
Другие студии в этом ЖК
33.7 кв.м
20 298 993 ₽
от 6% годовых
- Срок сдачи1 кв. 2028
- Общая площадь33.7 м2
- Этаж48




