Расположение
Тюмень, Тобольский тракт, 103

Скидки и акции от застройщика
Узнайте про персональные условия и дополнительные скидки при покупке квартиры

Описание
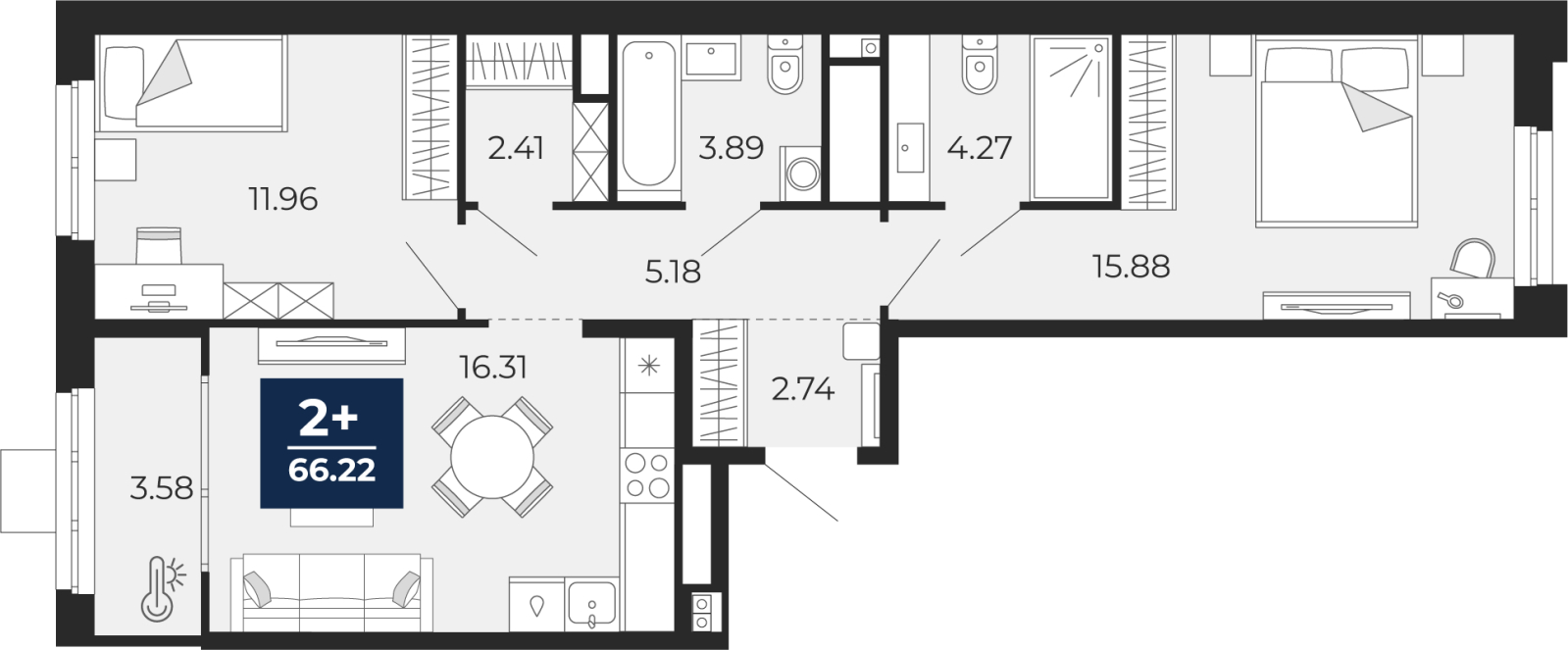
2-комн. квартира с предчистовой отделкой в ЖК "Мириады" на 2 этаже. Общая площадь: 66.22 кв.м., жилая: 27.84 кв.м., площадь просторной кухни-столовой: 16.31 кв.м. Квартира - распашонка, без проходных комнат, окна выходят на paзные стороны дома. В квартире одна лоджия, два совмещенных санузла. Высота потолков 2.7 м.
Дом монолитный, двухподъездный, переменной этажности, от 14 до 16 этажей. Квартира находится во 2-й секции высотой 16 этажей в корпусе ГП-72.107. На этаже 10 квартир. В подъезде 1 пассажирский и 1 грузовой лифт. Окончание строительства - 3 квартал 2028 года. Оформление сделки по договору долевого участия.
Вселенная бесконечных историй. Ранее невиданный Тюмени масштаб: территория 240 гектаров и 1 650 000 м² застройки.
Мириады - это город масштабных перемен и больших возможностей. Город зеленых рощ и зеркальных озер. Город для работы, учебы и развлечений. Город для детей и их родителей. Город для всех и каждого.
Проект расположен в районе Мыс рядом с ТРЦ "Тюмень Сити Молл" в границах улицы Тимофея Чаркова, Тобольского тракта и объездной дороги. Срок полного освоения территории - до 2034 года. (AQID02556582)
Параметры квартиры
- Площадь квартиры66.22
- Жилая площадь27.84
- Площадь кухни16.31
- Тип домаМонолитный
- Высота потолков2.7
- Этаж2 из 14
- Количество этажей14
- ОтделкаПредчистовая
- ЛифтДа
- СтудияНет
- Закрытая территорияНет
- Наличие мусоропроводаНет
- Элитная недвижимостьНет данных
- Наличие охраняемой парковкиДа
- Стадия строительства домаСтроится
- Площадь комнат11.96 / 15.88
О застройщике
Другие 2-комн. в этом ЖК
2-комнатная квартира, 66.22 кв.м
- Срок сдачи3 кв. 2028
- Общая площадь66.22 м2
- Этаж2




