Расположение
Москва, ул. Руставели, вл. 14, корп. 2.4
- Бутырская
3 мин

Скидки и акции от застройщика
Узнайте про персональные условия и дополнительные скидки при покупке квартиры

Описание
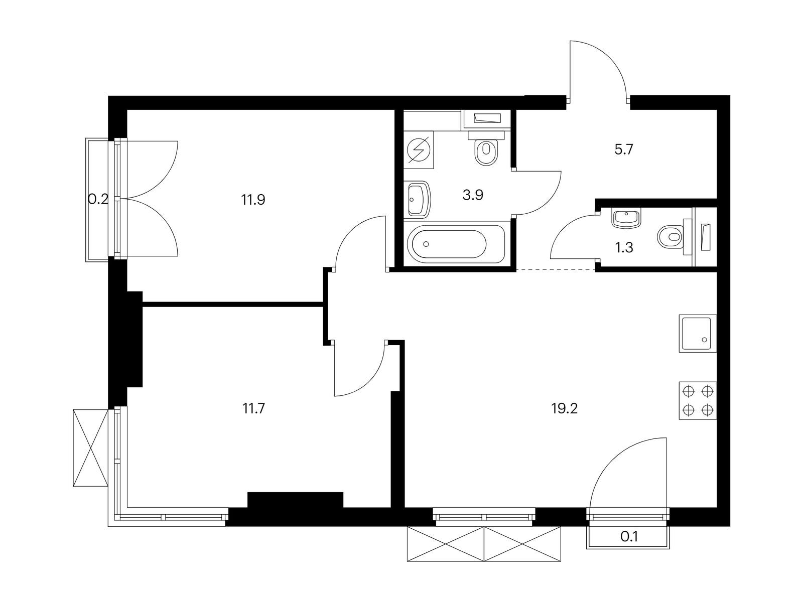
Продаётся 2-комн.квартира площадью 61.30 кв.м на 2 этаже 14 этажного дома (Корпус 2.4, секция 3) проекта ПИК Руставели 14. Светлый просторный подъезд на уровне земли, функциональная планировка, большие окна, с отделкой.
Жилой квартал «Руставели 14» строится на северо-востоке Москвы, недалеко от Останкинской башни и всего в трёх минутах ходьбы от станции метро «Бутырская». От неё недолго ехать до центра — всего 15 минут, и вы на «Сретенском бульваре». До станции МЦД «Останкино» 12 минут пешком. А на машине можно доехать до ТТК за 5 минут.
В проекте 18 домов с подземным паркингом и кладовыми, два детских сада и школа. Между домами появятся уютные дворы-парки без машин: с зелёными газонами, кустарниками и деревьями. В безопасных подъездах можно будет оставить велосипед или коляску. На первых этажах откроются кафе, магазины, пекарни и другие сервисы — за кофе и завтраком можно будет просто спуститься на лифте.
Район вокруг «Руставели 14» хорошо развит: здесь есть школы, детские сады и поликлиника. Рядом несколько парков, откуда открываются виды на Останкинскую башню, и арт-пространства: дизайн-завода Flacon и «Хлебозавод № 9». Идти до них всего 15 минут. Цена действует при оплате наличными. подробности по телефону. Артикул - 822630
Параметры квартиры
- Площадь квартиры61.3
- Жилая площадь25.2
- Площадь кухни23
- Тип домаПанельный
- Высота потолков2.62
- Этаж2 из 14
- Количество этажей14
- ОтделкаС отделкой
- ЛифтДа
- СтудияНет
- Закрытая территорияНет
- Наличие мусоропроводаНет
- Элитная недвижимостьНет данных
- Наличие охраняемой парковкиНет
- Стадия строительства домаСтроится
- Площадь комнат13.1 / 12.1
О застройщике
Другие 2-комн. в этом ЖК
2-комнатная квартира, 61.3 кв.м
- Срок сдачи1 кв. 2025
- Общая площадь61.3 м2
- Этаж2



