Расположение
Москва, ул. Академика Павлова, корп. 56
- Молодежная
9 мин

Скидки и акции от застройщика
Узнайте про персональные условия и дополнительные скидки при покупке квартиры

Описание
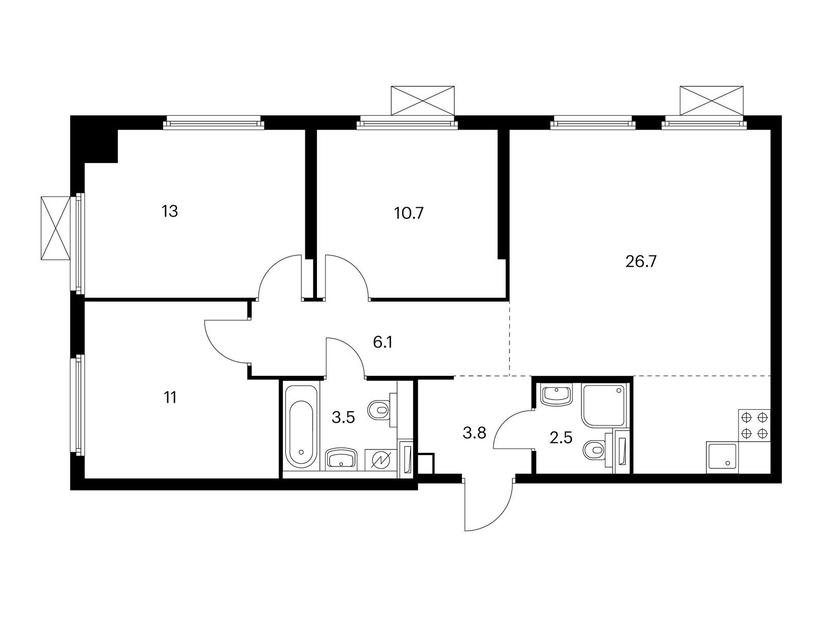
Продаётся 3-комн.квартира площадью 77.30 кв.м на 13 этаже 33 этажного дома (Корпус 56, секция 3) проекта ПИК Академика Павлова. Светлый просторный подъезд на уровне земли, функциональная планировка, большие окна, с отделкой.
«Академика Павлова» расположен в экологически чистом районе Кунцево. От домов до метро «Молодёжная» — всего 7 минут пешком. Рядом находятся зелёные парки, спортивные клубы, детские сады, школы и магазины.
Рядом с «Академика Павлова» находятся поликлиника, торговый центр «Кунцево Плаза» и ледовый дворец. Если вы любите спорт, то оцените близость к горнолыжной школе, конноспортивному центру, профессиональному велотреку, фитнес- и гольф-клубам. Рядом находится парк «Москворецкий», в который входят сразу несколько парков вдоль Москвы-реки, включая «Крылатские Холмы», «Фили» и «Серебряный бор».
До ТТК от «Академика Павлова» на машине можно доехать за 15 минут, до СЗХ за пять минут, а до МКАД — за восемь минут. Дорога до Рублёвского шоссе займёт четыре минуты, а до Кутузовского проспекта — 10 минут.
В 2023 году открылся северный дублёр Кутузовского проспекта — проспект Багратиона, до которого от «Академика Павлова» восемь минут на машине. По новой магистрали удобно ехать и в сторону центра, и в сторону области: от «Москва-Сити» до МКАД можно доехать за 10 минут. Цена действует при оплате наличными. подробности по телефону. Артикул - 730614
Параметры квартиры
- Площадь квартиры77.3
- Жилая площадь34.4
- Площадь кухни26.7
- Тип домаМонолит
- Высота потолков2.68
- Этаж13 из 15
- Количество этажей15
- ОтделкаС отделкой
- ЛифтДа
- СтудияНет
- Закрытая территорияНет
- Наличие мусоропроводаНет
- Элитная недвижимостьНет данных
- Наличие охраняемой парковкиДа
- Стадия строительства домаСдан в эксплуатацию
- Площадь комнат13 / 11 / 10.7
О застройщике
Другие 3-комн. в этом ЖК
3-комнатная квартира, 77.3 кв.м
- Срок сдачи3 кв. 2023
- Общая площадь77.3 м2
- Этаж13

