Расположение
Москва, жилой комплекс Кольская 8, 2.4
- Свиблово
8 мин

Скидки и акции от застройщика
Узнайте про персональные условия и дополнительные скидки при покупке квартиры

Описание
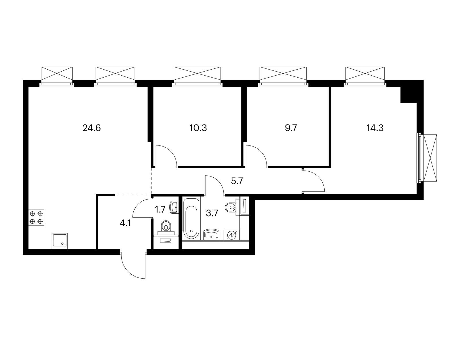
Продаётся 3-комн.квартира площадью 74.10 кв.м на 18 этаже 33 этажного дома (Корпус 2.4, секция 1) проекта ПИК Кольская 8. Светлый просторный подъезд на уровне земли, функциональная планировка, большие окна, с отделкой.
Жилой квартал «Кольская 8» строится в Бабушкинском районе, в 8 минутах пешком от метро «Свиблово». До Ярославского шоссе на машине — 8 минут, а до ТТК — 16. До нескольких парков и набережной реки Яузы можно дойти пешком.
В проекте два жилых блока с подземными паркингами, школа и детский сад. В зелёных дворах-парках будут места для отдыха, современные детские и спортивные площадки. На первых этажах откроются магазины, кафе и другие сервисы — за кофе и свежим хлебом к завтраку можно будет просто спуститься на лифте.
Рядом с кварталом есть всё для комфортной жизни: в 8 минутах неспешным шагом — благоустроенные парки Яуза и Свиблово, а до Ботанического сада можно доехать за 7 минут на машине. Недалеко от проекта находятся детские сады, школы, поликлиники, магазины и торговые центры. Цена действует при оплате наличными. подробности по телефону. Артикул - 833898
Параметры квартиры
- Площадь квартиры74.1
- Жилая площадь34.3
- Площадь кухни24.6
- Тип домаМонолит
- Высота потолков2.68
- Этаж18 из 33
- Количество этажей33
- ОтделкаЧистовая
- ЛифтДа
- СтудияНет
- Закрытая территорияНет
- Наличие мусоропроводаНет
- Элитная недвижимостьНет данных
- Наличие охраняемой парковкиНет
- Стадия строительства домаСтроится
- Площадь комнат14.3 / 10.3 / 9.7
О застройщике
Другие 3-комн. в этом ЖК
3-комнатная квартира, 74.1 кв.м
- Срок сдачи2 кв. 2025
- Общая площадь74.1 м2
- Этаж18



