Расположение
Москва, ул. Римского-Корсакова, 11
- Отрадное
15 мин

Скидки и акции от застройщика
Узнайте про персональные условия и дополнительные скидки при покупке квартиры

Описание
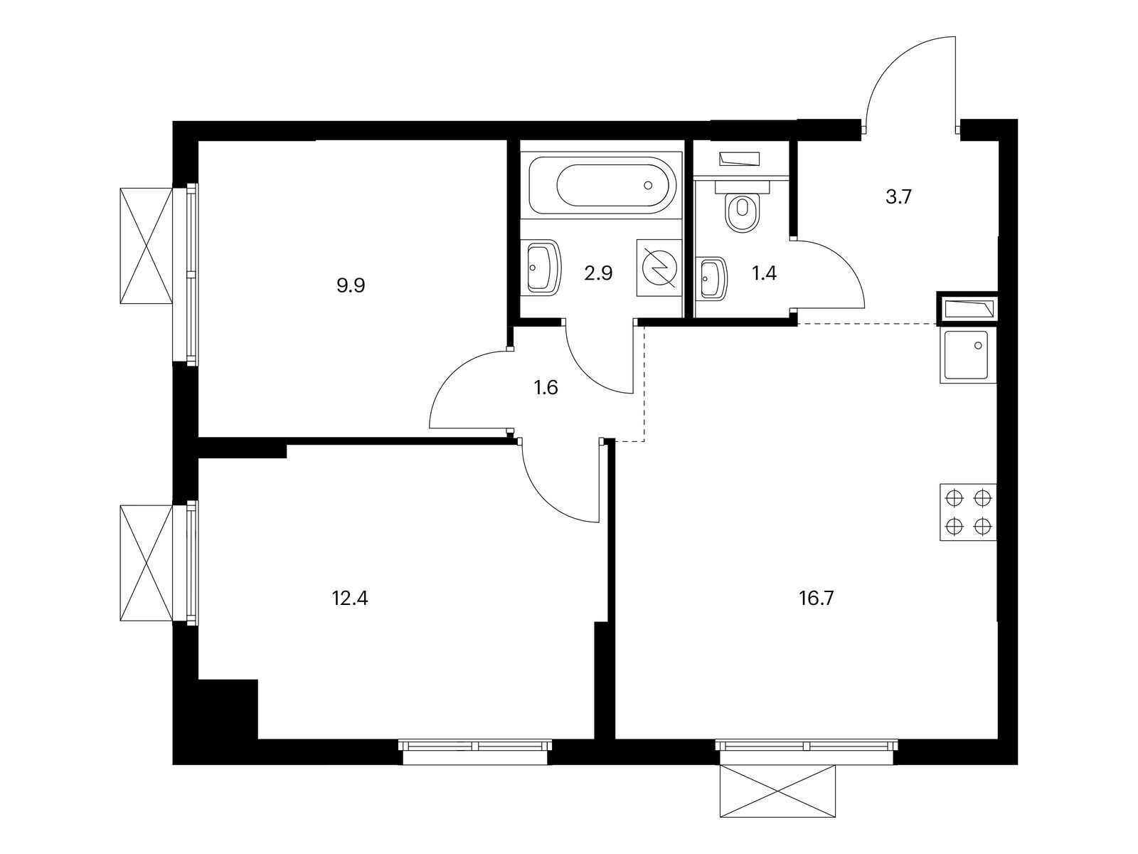
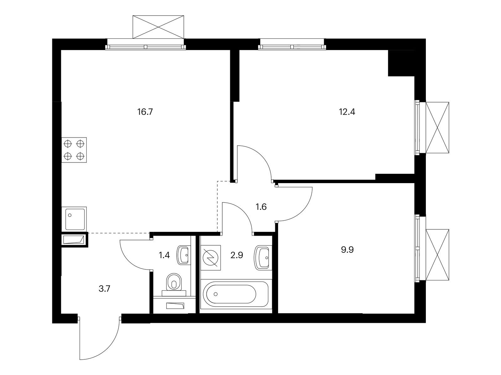
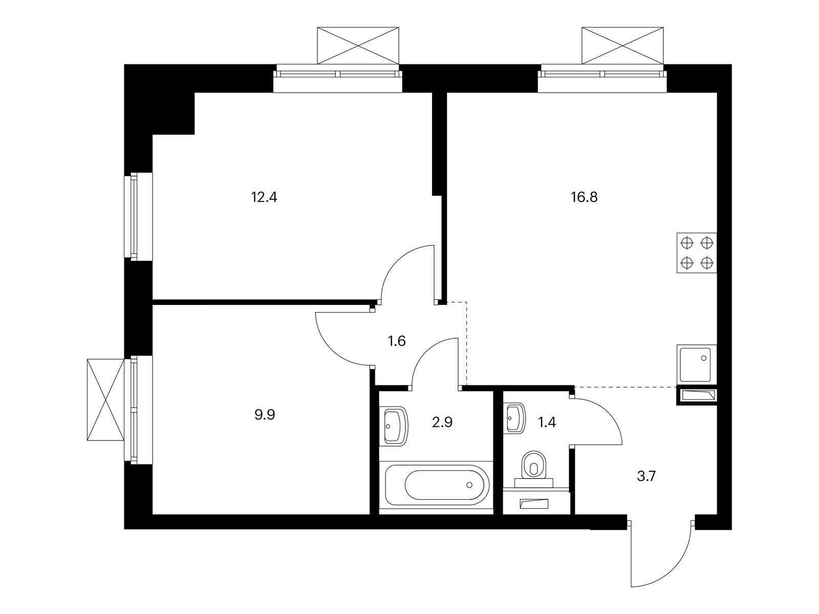
Продаётся 2-комн.квартира площадью 65.00 кв.м на 23 этаже 24 этажного дома (Корпус 13, секция 1) проекта ПИК Римского-Корсакова 11. Светлый просторный подъезд на уровне земли, функциональная планировка, большие окна, с отделкой.
Жилой комплекс «Римского-Корсакова 11» возводится на севере Москвы, в 15 минутах пешком от м. «Отрадное». В проекте 10 жилых корпусов, из которых 8 уже построены, введен в эксплуатацию детский сад на 220 мест и многоуровневый наземный паркинг. На территории «Римского-Корсакова 11» есть пешеходный бульвар, а также площадка для выгула собак.
На первых этажах домов предусмотрены магазины и предприятия сферы услуг, а в уже сданных корпусах работает детский спортклуб, пункт выдачи Wildberries, бьюти-студия, кафе-кондитерская, несколько продуктовых магазинов и многое другое. Рядом расположено 3 детских сада, 3 школы, детская и взрослая поликлиники, торговые центры. В пешей доступности находится благоустроенный парк у реки Чермянки, лесопарковая зона у Яузы, парк «Отрада» и несколько скверов. Ближайшие остановки общественного транспорта располагаются в 3-5 минутах пешком.
На территории «Римского-Корсакова 11» работает частная школа W.I.D.E., где могут учиться до 550 ребят. Отдельное здание, в котором она находится, построено в соответствии со стандартами ПИК. Школа создана по принципам безбарьерной среды: все входы расположены на уровне земли, без ступеней и порогов. Рядом со зданием находятся футбольное и баскетбольное поля, зоны для отдыха и занятий на свежем воздухе. Школа W.I.D.E. делает упор на изучении английского языка, физики и математики. Выпускники получают российский аттестат и международный диплом, который признаётся в других странах. В интерьере школы используются разные цвета, чтобы создать благоприятную образовательную среду. Например, спокойные тона в учебных комнатах помогают детям концентрироваться, а яркие элементы добавляют энергии и используются в игровых комнатах и спортивных залах.
В проекте предусмотрена медленная зона для электросамокатов — с 7 утра до полуночи при въезде на территорию квартала скорость электросамокатов автоматически снижается до 15 км/ч. Цена действует при оплате наличными. подробности по телефону. Артикул - 881713
Параметры квартиры
- Площадь квартиры65
- Жилая площадь29.2
- Площадь кухни21.7
- Тип домаМонолит
- Высота потолков2.62
- Этаж23 из 24
- Количество этажей24
- ОтделкаС отделкой
- ЛифтДа
- СтудияНет
- Закрытая территорияНет
- Наличие мусоропроводаНет
- Элитная недвижимостьНет данных
- Наличие охраняемой парковкиДа
- Стадия строительства домаСдан в эксплуатацию
- Площадь комнат16.7 / 12.5
О застройщике
Другие 2-комн. в этом ЖК
2-комнатная квартира, 65 кв.м
- Срок сдачи2 кв. 2025
- Общая площадь65 м2
- Этаж23




