Расположение
Москва, пр-д Стройкомбината, 1, корп. 1.1
- Аминьевская
20 мин

Скидки и акции от застройщика
Узнайте про персональные условия и дополнительные скидки при покупке квартиры

Описание
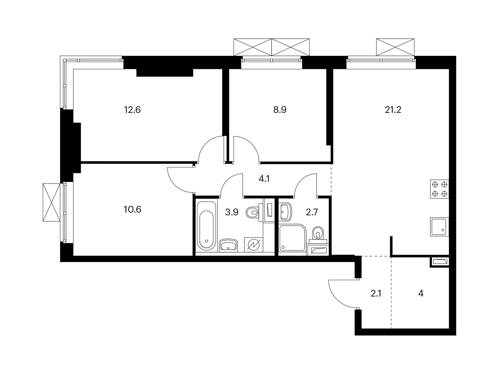
Продаётся 3-комн.квартира площадью 70.10 кв.м на 15 этаже 33 этажного дома (Корпус 1.1, секция 1) проекта ПИК Новое Очаково. Светлый просторный подъезд на уровне земли, функциональная планировка, большие окна, с отделкой.
«Новое Очаково» возводится на западе Москвы, в Очаково-Матвеевском районе. Из каждого дома можно будет выйти в уютный двор-парк, а на подземных этажах появятся паркинги и кладовые. Для жителей откроются школы и детские сады.
Всего в 3 минутах пешком — станция МЦД-4 «Очаково», от которой можно доехать до центра за 15 минут. Рядом с проектом находятся живописные места для отдыха: «Долина реки Очаковки», Очаковские пруды.
Фасады проекта украшают элегантные французские балконы и угловые окна. Такие решения визуально облегчают конструкции башен и выгодно выделяют их на фоне обычных домов.
Проект расположен в Матвеевском кластере — новом современном районе, который будет состоять из четырёх кварталов: «Новое Очаково», «Матвеевский парк», «Большая Очаковская 2» и Vangarden. Перемещаться между кварталами будет удобно по 350-метровому пешеходному мосту, под которым появится уютный зелёный парк.
У проектов будет общая инфраструктура и благоустроенная территория. Уже открыта часть пешеходного бульвара, который строится по проекту британского бюро Gillespies. Здесь можно гулять после работы, играть с детьми, заниматься спортом и отдыхать у сухого фонтана с ночной подсветкой. В будущем в кластере появится пешеходный мост, который соединит жилые кварталы. В начале бульвара расположен вестибюль станции метро «Аминьевская», а в будущем также появится торговый центр.
Отдыхать и заряжаться адреналином жители кластера смогут в SportHub Extreme — зоне площадью более 3 500 м², рассчитанной на любителей экстремальных видов спорта. Здесь будут площадки для безопасного катания на скейтбордах, роликах, самокатах и велосипедах. Для командных игр — например, мини-футбола и стритбола — появится отдельная универсальная площадка с покрытием из резины. Помимо этого, на территории «Матвеевского кластера» начнут работу пять новых школ, шесть детских садов, и комьюнити-центр ОМА.
В «Новом Очаково» доступны планировки с отдельными гардеробными и мастер-спальнями с собственной ванной комнатой. Есть варианты с гардеробной с окном, которую можно использовать как комфортную примерочную или переделать в уютный кабинет.
Во всех квартирах предусмотрены большие окна, которые пропускают много солнечного света. В квартирах с угловыми окнами будет большой угол обзора, а с французскими балконами — панорамное остекление. Цена действует при оплате наличными. подробности по телефону. Артикул - 809438
Параметры квартиры
- Площадь квартиры70.1
- Жилая площадь32.1
- Площадь кухни21.1
- Тип домаМонолит
- Высота потолков2.68
- Этаж15 из 33
- Количество этажей33
- ОтделкаЧерновая отделка
- ЛифтДа
- СтудияНет
- Закрытая территорияНет
- Наличие мусоропроводаНет
- Элитная недвижимостьНет данных
- Наличие охраняемой парковкиНет
- Стадия строительства домаСдан в эксплуатацию
- Площадь комнат12.6 / 10.6 / 8.9
О застройщике
Другие 3-комн. в этом ЖК
3-комнатная квартира, 70.1 кв.м
- Срок сдачи4 кв. 2024
- Общая площадь70.1 м2
- Этаж15




